GCS/MNS Low-voltage Withdrawable Electrical Switchgear
GCS low-voltage withdrawable switchgear, also called low-voltage drawer cabinet, GCS low-voltage withdrawable switchgear is a high-performance power distribution device jointly commissioned by the Ministry of Electric Power Industry and the Ministry of Machinery Industry.
- DESCRIPTION
- SPECIFICATION
- TECHNICAL & SALES SUPPORT
GCS Low-Voltage Withdrawable Switchgear Description:
GCS low-voltage withdrawable switchgear, also called low-voltage drawer cabinet, GCS low-voltage withdrawable switchgear is a high-performance power distribution device jointly commissioned by the Ministry of Electric Power Industry and the Ministry of Machinery Industry. It is suitable for power plants, petrochemicals, high-rise buildings and other occasions, and has the features of strong breaking and connecting capacity, good dynamic and thermal stability, flexible electrical programme, convenient combination and so on. Its drawer design makes maintenance and operation more convenient, and it has been widely used in electric power system.
GCS Low-Voltage Withdrawable Switchgear Model:

GCS Low-Voltage Withdrawable Switchgear Features:
- 1. Increase the heat capacity of the adapter, and greatly reduce the additional temperature rise caused by the temperature rise of the adapter to the connector, cable head, and spacer plate.
- 2. The separation between functional units and compartments is clear and reliable, and the failure of one unit does not affect the work of other units, so that the failure is limited to a minimum.
- 3. The horizontal arrangement of the busbar makes the device have good dynamic and thermal stability, and can withstand the impact of 80/176kA short-circuit current.
- 4. The number of circuits in a single MCC cabinet is as many as 22, and the needs of large single-unit power generation, petrochemical systems and other industries for automated electric door (machine) groups are fully considered.
- 5. The connection between the device and the external cable is completed in the cable compartment, and the cables can be entered and exited up and down. The zero sequence current transformer is placed in the cable compartment, making installation and maintenance easy.

GCS Low-Voltage Withdrawable Switchgear Environment:
- 1. Ambient air temperature: -5~+40 and the average temperature should not exceed +35 in 24h.
- 2. Install and use indoors. Altitude above sea level for operation site should not exceed 2000M.
- 3. Relative humidity should not exceed 50% at max temperature +40. Higher relative humidity is allowed at lower temperature. Ex. 90% at +20. But in view of the temperature change, it is possible that moderate dews will produce casually.
- 4. Installation gradient not exceed 5.
- 5. Install in the places without fierce vibration and shock and the sites insufficient to erode the electrical components.
GCS Low-Voltage Withdrawable Switchgear Application:
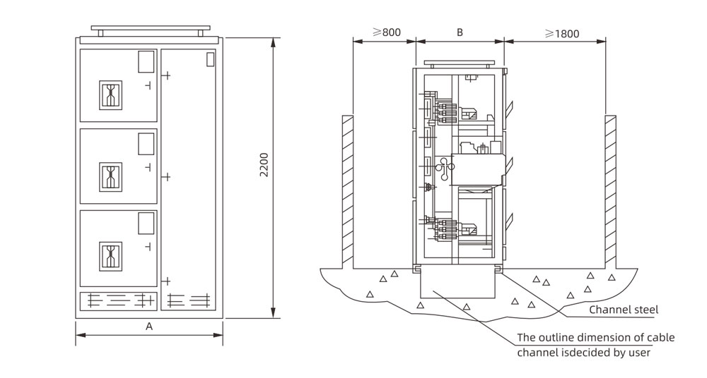
LV withdrawable switchgear is suitable for distribution system of power plant, high building and some lines, such as petroleum chemistry and industry, metallurgy, textile, etc. It is applicable for distribution, motor centralized control, reactive power compensation in power generation and power supply system of three phase AC 50/60Hz, rated voltage 380V(400V,600V), rated current 4000A and below, where require high automation and interfaces with computers.
GCS Low-Voltage Withdrawable Switchgear Technical Specification
| Main circuit rated voltage(V) | AC 380 (400), (600) | |
| Auxiliary circuit rated voltage(V) | AC 220, 380 (400) | |
| DC 110, 220 | ||
| Rated frequency (Hz) | 50 (60) | |
| Rated insulation voltage(V) | 660 (1000) | |
| Rated current(A) | Horizontal busbar | ≤4000 |
| Vertical busbar (mcc) | 1000 | |
| Busbar rated short time withstand current (kA/1s) | 50,80 | |
| Busbar rated peak withstand current (kA/0.1s) | 105, 176 | |
| P. F. test voltage (V/min) | Main circuit | 2500 |
| Auxiliary circuit | 2500 | |
| Busbar | Three phase four wire | A.B.C.PEN |
| Three phase five wire | A.B.C.PEN | |
| Protection degree | IP40 | |
lf you have any further requests or questions
TECHNICAL & SALES SUPPORT
If you have any questions, please contact us. We’ll do our best to help.


